NKBA logo and CKBD badge
Mood board collage with tile, wallpaper, hardware, and paint samples
AutoCAD floor plan drawing

Need more context? Here are 15 things to consider when designing a kitchen:

Why Hire a Certified Kitchen and Bath Designer

It’s a fair question!

Here are a few things to consider.

Education

Earning CKBD certification through the National Kitchen and Bath Association requires completion of an interior design degree from an approved college, 5+ years of kitchen and bath design experience, and passing the NKBA’s rigorous certification exam.

Partnering with a certified kitchen and bath designer ensures that your planned space meets the highest standards and conventions for kitchen and bath design. Certification by the National Kitchen and Bath Association warrants that a designer has met rigorous standards for knowledge, skills and experience for creating safe, functional and beautiful spaces. 

Knowledge

A certified kitchen and bath designer’s skills and knowledge encompass the full range of design and function considerations.  Space planning, product and material knowledge, construction codes, market trends, residential technology, energy efficiency, health and wellness standards, and sustainability are some examples of the encyclopedic knowledge designers can be relied upon to bring to every project.  Furthermore, K and B designers have to stay current with the latest industry trends and developments. The kitchen and bath industry is a fast paced, product-intensive industry. Every day companies are releasing new products, developing new materials, adding new features, enhancing storage solutions, updating styles and much more. Your designer will guide you in in selecting and sourcing all of the fixtures, finishes, lighting, appliances, etc. in accordance with your requirements, budget and style preferences, as well as steer the project to a timely completion. 

Experience

Judging from a designer’s portfolio, you can trust that your designer brings a depth of experience to your project gained through years of creative problem solving. Experienced designers have worked on an array of projects of varying scope, budget, style, complexity and timeline. And while every project is unique to some degree, knowing that your designer has extensive hands-on experience should instill confidence that your project is in capable hands and will help you avoid costly mistakes.

Skills

A certified designer offers a highly specialized set of skills uniquely suited to the process of designing a kitchen or bath.

  • Visualization - The ability to envision and recommend appropriate alterations, additions or deletions in the existing space, drawing on in-depth knowledge of successful layout, cabinet and appliance sizes, and approved kitchen and bath standards and guidelines

  • Kitchen and Bath Standards - The NKBA has spent more than 50 years developing highly specific standards and guidelines for kitchen and bathroom design; a certified kitchen and bath designer knows these standards and guidelines inside and out and (most always) follows them for the best outcome

  • Space Planning - Optimizing the existing or reconfigured space for maximum function, efficiency, safety, and aesthetic appeal

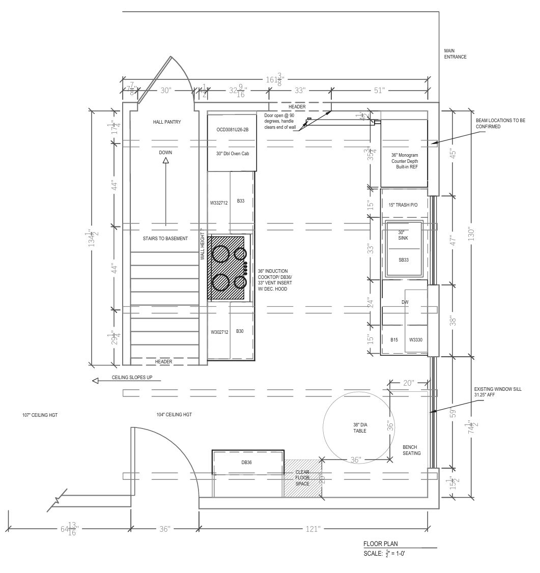
  • CAD Drawings - Proficiency with computer aided drafting for the production of precision 2D plan drawings that aid in visualization and communication among all involved parties

  • Product Knowledge and Sourcing - Key to assisting homeowners in the selection of appliances, cabinets, plumbing fixtures, lighting, countertops, flooring, accessories, and more using known and vetted sources

  • Cost Estimating - Calculating the cost of materials to be ordered based on the square footage or quantity needed, insuring that there is neither a surplus or a shortage of goods; examples are flooring, tile, and wall coverings

  • Administration - Inventory of products and materials ordered; tracking product delivery; trouble shooting when products arrive damaged or are out of stock

  • Project Oversight - Problem solving and consultation on myriad details as the construction phase is underway

Building a kitchen or bath that is both beautiful and functional requires a team of people each having specific skills and knowledge. And it all begins with “good” design. What is good design?

Design that Works.

Contact Us
Learn more